Deinze € 175.000
Algemeen
-
Deinze 9800Tolpoortstraat 102
- Ref. W-2391
- Te koop
- NORDIC
Nieuwbouw handelsgelijkvloers te koop in Deinze
Casco winkelruimte te koop in de Tolpoortstraat in Deinze, dé hoofdwinkelstraat in Deinze, vlot bereikbaar met de wagen via de E17 (Gent-Kortrijk op 3,5km) en met het openbaar vervoer (station van Deinze en bushalte op wandelafstand).
Beschikbare ruimtes:
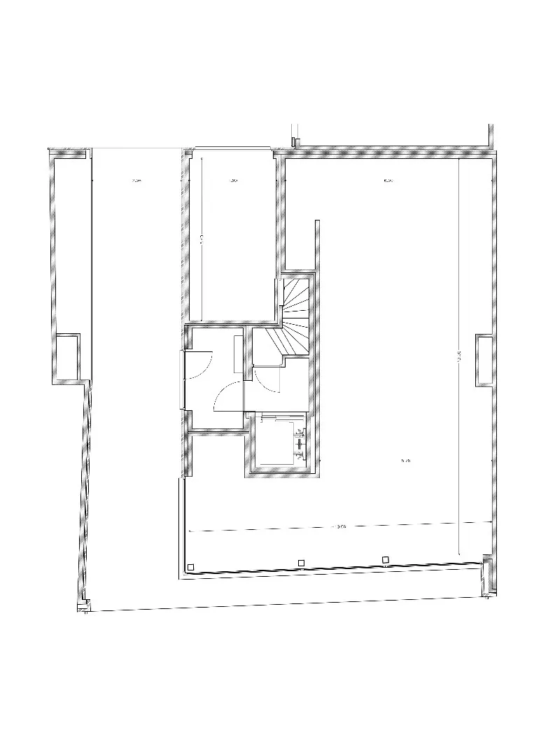
88m² casco handelsruimte op gelijkvloers
Troeven: commerciële topligging - nieuwbouw - mooie vrije hoogte - zonnepanelen
Beschikbare ruimtes:
88m² casco handelsruimte op gelijkvloers
Troeven: commerciële topligging - nieuwbouw - mooie vrije hoogte - zonnepanelen
Beschikbaarheden
| Verdieping | Type | Oppervlakte | Prijs | Beschikbaar vanaf | Opmerking |
|---|---|---|---|---|---|
| 0 | Winkel | 88,00 m² | 175.000,00 € | Bij akte |
prijs is exclusief kosten (verkooprechten en BTW)
grondwaarde: €101.800 (winkel) + €12500 (garage) - constructiewaarde: €73.500 (winkel) + €22500 (garage)
mogelijkheid tot garagebox: €35.000
grondwaarde: €101.800 (winkel) + €12500 (garage) - constructiewaarde: €73.500 (winkel) + €22500 (garage)
mogelijkheid tot garagebox: €35.000
Technisch
Winkel
- zonnepanelen
- glasgevel
- aluminium schrijnwerk
- Vrije hoogte: 3,7 m
- dubbele beglazing
- casco oplevering
Omgeving
Informatieplicht
| Omgevingsvergunning: | Ja |
| Voorkooprecht: | Neen |
| Verkavelingsvergunning: | Neen |
| Bestemming: Woongebied | |
| Dagvaarding: Geen rechterlijke herstelmaatregel of bestuurlijke maatregel opgelegd | |
| P-score: A G-score: A Geen afgebakende zones | |
| Erfgoed: Geen beschermd erfgoed | |
Dit pand kan onderhevig zijn aan de renovatieverplichting die door de Vlaamse Overheid wordt opgelegd voor niet-residentiële gebouwen. Consulteer voor meer informatie de website van het Vlaams Energie- en Klimaatagentschap via https://www.energiesparen.be/nr/renovatieverplichting
Casco winkelruimte te koop op topligging in Deinze
In de Tolpoortstraat, dé belangrijkste en drukst bezochte winkelstraat van Deinze, bieden we deze casco handelsruimte van 88 m² te koop aan. Dankzij de brede gevel, sterke zichtlocatie en constante passage is dit een ideale opportuniteit voor retailers, boetieks, dienstverleners of conceptstores die zich willen vestigen in een winkelomgeving met uitstraling.
De ruimte bevindt zich op het gelijkvloers en biedt dankzij de mooie plafondhoogte en de casco oplevering maximale flexibiliteit in inrichting. Je creëert er moeiteloos een winkelbeleving op maat van jouw merk en klanten.
🚗 Vlotte bereikbaarheid & sterke centrale ligging
De handelsruimte is zowel met de wagen als met het openbaar vervoer uitstekend bereikbaar.
⭐ Troeven op een rij
Wie op zoek is naar een zichtbare, duurzame en flexibele commerciële ruimte in een bloeiende winkelkern, vindt hier een locatie met echte meerwaarde.
Interesse of een vrijblijvend plaatsbezoek?
Contacteer Arne 09/243 41 85.
De ruimte bevindt zich op het gelijkvloers en biedt dankzij de mooie plafondhoogte en de casco oplevering maximale flexibiliteit in inrichting. Je creëert er moeiteloos een winkelbeleving op maat van jouw merk en klanten.
De handelsruimte is zowel met de wagen als met het openbaar vervoer uitstekend bereikbaar.
- E17 (Gent–Kortrijk) ligt op slechts 3,5 km
- Station van Deinze en bushalte bevinden zich op wandelafstand
- 🏙️ Toplocatie in de hoofdwinkelstraat van Deinze
- 🆕 Nieuwbouw met moderne uitstraling
- 📏 Mooie vrije hoogte en grote vitrineramen
- 🛠️ Casco afwerking = in te richten volgens eigen concept
- ☀️ Zonnepanelen
Interesse of een vrijblijvend plaatsbezoek?
Contacteer Arne 09/243 41 85.
Uw contactpersoon
Arne Van Hoorebeke
stagiair makelaar bedrijfsvastgoed - kantoren
BIV nummer 518.994
Uw kantoor
Niet gevonden wat u zocht?
Schrijf u dan vrijblijvend in en blijf op de hoogte van ons meest recente aanbod.