Sint-Martens-Latem vanaf € 2.150

Vraag meer informatie

Algemeen

  • Sint-Martens-Latem 9830
    Kortrijksesteenweg 90
  • Ref. K-0917
  • Te huur
  • 90KARAAT

Kantoren te huur op zichtlocatie langs Kortrijksesteenweg in Sint-Martens-Latem

Recent gerenoveerd kantoorgebouw langs de Kortrijksesteenweg in Sint-Martens-Latem, een belangrijke invalsweg van Gent, op 5 min. van afrit E40 (Flanders Expo)

Beschikbare kantoorruimtes te huur:
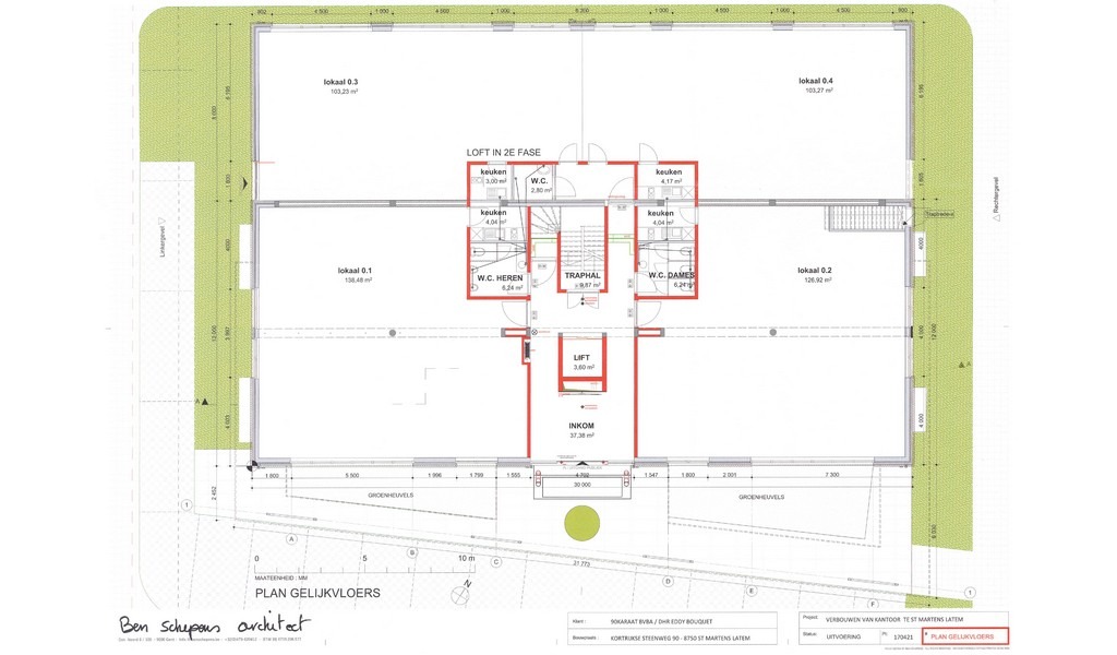
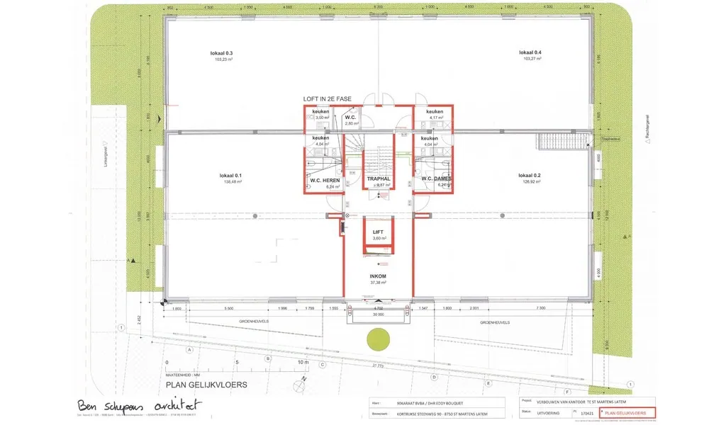
- gelijkvloers links: 138m² kantoor bestaande uit 3 aparte burelen, open ruimte, kitchenette en gemeenschappelijk sanitair
- gelijkvloers rechts: 138m² kantoor bestaande uit landschapskantoor met kitchenette en gemeenschappelijk sanitair, combineerbaar tot 276m² met aanpalende ruimte
- 2de verdieping links: 180m² kantoor met kitchenette en gemeenschappelijk sanitair
Pluspunten: recent vernieuwd - zichtlocatie - ruime parking

Beschikbaarheden

Verdieping Type Oppervlakte Prijs Beschikbaar vanaf Opmerking
0 Kantoor 138,00 m² 2.150,00 €/maand Onmiddellijk kantoor 0R
2 Kantoor 180,00 m² 2.250,00 €/maand Onmiddellijk kantoor 2L
0 Kantoor 138,00 m² 2.150,00 €/maand Onmiddellijk kantoor 0L
ruime gemeenschappelijke parking inbegrepen in huurprijs

Technisch

Kantoren

Bouwjaar
2001
Liften
1
Airco
Ja
Verwarming
Elektriciteit
Sanitair
13
Keuken
Ja
  • renovatiejaar: 2019
  • aluminium schrijnwerk, draai/kipramen
  • dubbele beglazing, binnenzonwering
  • deels landscape/ deels ingedeeld
  • akoestisch verlaagd plafond
  • inbouw led-armaturen
  • databekabeling, kabelzuilen
  • vasttapijt/tapijttegels
  • sanitair H/D per verdieping, douche
  • kitchenette
  • warmtepomp
  • airco
  • mechanische ventilatie
  • brandalarm, parlofoon

Omgeving

afrit E40 en R4 op 3km
bushalte lijn 77 en 78 op 350m

Kantoren te huur in gerenoveerd kantoorgebouw op zichtlocatie – Sint-Martens-Latem

Op een uitstekende zichtlocatie langs de Kortrijksesteenweg, een van de belangrijkste invalswegen naar Gent, bieden wij recent gerenoveerde kantoorruimtes te huur aan. Deze locatie ligt op slechts 5 minuten van afrit E40 (Flanders Expo), wat zorgt voor een vlotte bereikbaarheid met de wagen.

Beschikbare kantoorruimtes:

  • Gelijkvloers links: 138 m² kantoor bestaande uit 3 aparte burelen, openruimte, kitchenette en gedeeld sanitair
  • Gelijkvloers rechts: 138 m² kantoor met kitchenette en gedeeld sanitair – combineerbaar tot 276 m² met aanpalende ruimte
  • 2e verdieping links: 180 m² kantoor met kitchenette en gedeeld sanitair

Troeven van dit pand:

  • Recent gerenoveerd met oog voor comfort en uitstraling
  • Gelegen op een commerciële zichtlocatie met veel passage
  • Ruime parkeergelegenheid op eigen terrein
  • Flexibele oppervlaktes – ideaal voor groeiende bedrijven of kantoren met nood aan aparte werkzones

Ben je op zoek naar een moderne kantoorruimte in de regio Gent met een professionele uitstraling? Neem dan gerust contact met ons op voor meer info of een bezoek.

 

Uw contactpersoon

Quinten Van Hoorebeke

stagiair makelaar bedrijfsvastgoed - kantoren BIV nummer 518.913

Uw kantoor

CD-Vastgoed Gent

Pieter van Reysschootlaan 2/0001
9051 Gent
info@cd-vastgoed.com +32 9 259 26 55

Niet gevonden wat u zocht?

Schrijf u dan vrijblijvend in en blijf op de hoogte van ons meest recente aanbod.
Schrijf u in